Gesunda skidanläggning
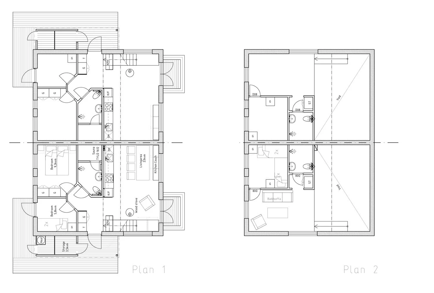
Gesunda skidanläggning intill sjön Siljan behövde fler bäddplatser för att få lönsamhet i anläggningen. Parhus där stor vikt las vid det praktiska på en skidsemester, entré som hanterar utrustning och snöiga kläder, skidbod utanför entrén, TV rum på övervåningen, kök och allrum med kamin på markplan och en vidunderlig utsikt.
Byggår 2008